Informaţii despre sit
|
Localizare
|
|
Afişează pe harta României
*
|
|
Cod RAN
|
|
179132.89 |
Cod LMI (Lista Monumentelor Istorice)
|
|
B-II-m-A-19217 |
|
Nume
|
|
Situl arheologic de la Bucureşti - Casa Eliad |
|
Județ
|
|
Bucureşti |
|
Unitate administrativă
|
|
Municipiul Bucureşti |
|
Localitate
|
|
Bucureşti |
|
Adresa
|
|
Str. Mircea Vodă 5, sector 3 |
|
Reper
|
|
Casa Eliad este poziţionată în apropierea intersecţiei dintre bulevardul Mircea Vodă şi strada Matei Basarab. În Casa Eliad funcţionează azi Serviciul de Stare Civilă al Sectorului 3. |
|
Categorie
|
|
locuire |
|
Tip
|
|
edificiu |
|
Descriere
|
|
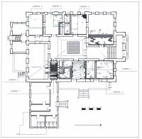
La 1847 în locul de la adresa actuală exista o casă de târgoveţ, având ca propietar pe căminarul Ştefan Ogrădeanu. Casa, cu structură de lemn, a ars în 1847. Ulterior este refăcută şi extinsă în 1847-1851, iar între 1862-1863 imobilul a fost cumpărat de familia Eliad, care îl transformă şi măreşte. Casa actuală cuprinde subsol, demisol, parter şi pod. |
|
Observații
|
|
Cercetarea arheologică preventivă s-a făcut la solicitarea SC Euroconex SRL, în cadrul proiectului de conservare, restaurare şi punere în valoare a Casei Eliad. |
|
Data ultimei modificări a fişei
|
|
05.10.2022
|
|
| |
Componente în cadrul sitului
|
|
Categorie/ Tip
|
Epoca (Datare)
|
Cultura/ Faza culturală
|
Atestare documentară
|
Descriere/ Observații
|
Cod LMI
|
|
Casă
|
Epoca modernă
(sec. XIX)
|
|
|
Cercetarea arheologică a confirmat faptul că există mai multe etape evolutive în istoria casei Eliad. Coroborând suprapunerea planurilor descoperirilor si analizând structurile de zidărie s-a presupus existenţa a trei etape constructive între anul 1847 şi 1863.
|
|
|
| |
Cercetare
|
|
|
Tip
|
An
|
Observații
|
Instituția
|
Nume
|
Prenume
|
|
1.
|
cercetare supraveghere
|
2011
|
|
Institutul Național al Patrimoniului
|
MIHAI
|
Daniela
|
|
SANDU
|
Ciprian
|
|
2.
|
cercetare preventivă
|
2009
|
|
Muzeul Municipiului București
|
MĂNUCU - ADAMEŞTEANU
|
Gheorghe
|
|
IGNAT
|
Theodor
|
|
Bibliografie
|
|
1.
Mihai, Daniela, Cronica cercetărilor arheologice din România. Campania 2011, Institutul Național al Patrimoniului, 2012, https://cronica.cimec.ro/detaliu.asp?k=4815&d=Bucuresti-Casa-Eliad-str-Mircea-Voda-nr-5-2011 [Publicaţie] (sursa fişei de sit)
|
|
2.
Ignat, Theodor et alii, Studiu Arheologic. PUZ Sector 3 al Municipiului București, 2018 [PUG]
|
| |
|
|
Fotografii sit
|