Informaţii despre imagine
|
Datare
|
|
2000 |
|
Publicată în
|
|
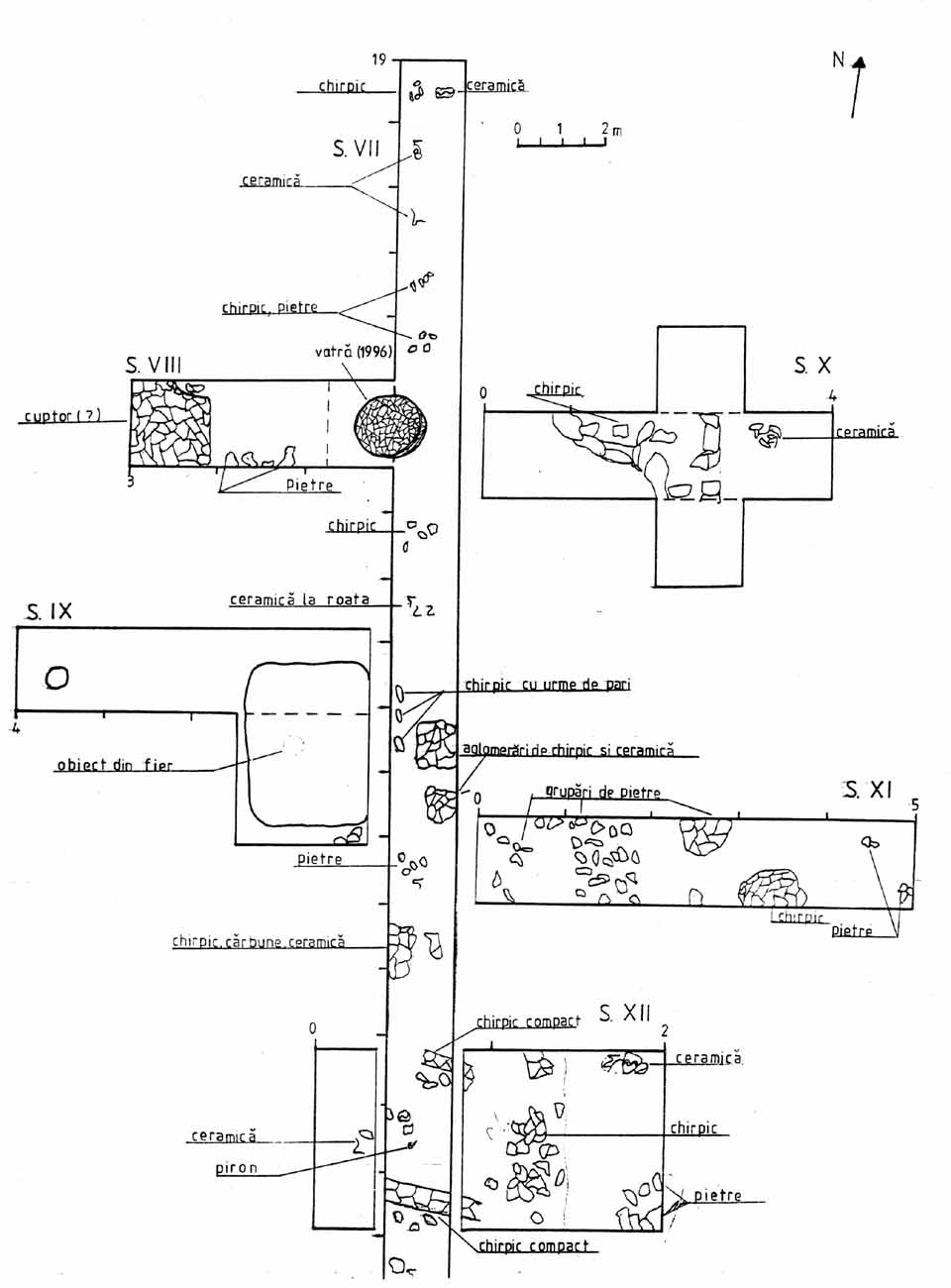
Cronica Cercetarilor Arheologice din România, Campania 2000 - Raportul nr. 90
|
|
| |
Situri asociate imaginii
|
|
Informaţii despre sit
|
|
Localizează pe harta României*
|
|
Cod RAN
|
|
65878.01 |
|
Nume
|
|
Aşezarea fortificată geto-dacică de la Iedera - Dealul Cetăţuia |
|
Județ
|
|
Dâmboviţa |
|
Unitate administrativă
|
|
Iedera |
|
Localitate
|
|
Iedera De Jos |
|
Punct
|
|
Dealul Cetăţuia |
|
Reper
|
|
Aşezarea se află pe valea Rudei, pe platoul din stânga cişmelei artificiale, în bazinul Cricovului Dulce, afluent pe partea stângă a râului Ialomiţa. |
|
Forma de relief
|
|
platou |
|
Utilizare teren
|
|
pădure |
|
|
|
|
Imagine preluată din Cronica Cercetărilor Arheologice din România, Campania 2000. Raportul nr. 90
|