Informaţii despre imagine
Datare   2001
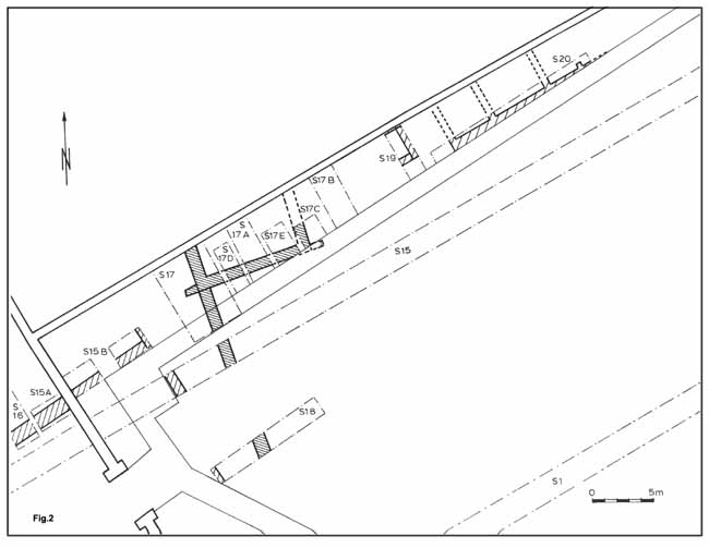
Publicată în   Cronica Cercetarilor Arheologice din România, Campania 2001 - Raportul nr. 60
Referință internet  
 
Situri asociate imaginii
Informaţii despre sit   Localizează pe harta României*
Cod RAN   13506.03
Cod LMI (Lista Monumentelor Istorice) Lista Monumentelor Istorice din 2010   AG-II-a-A-13547
Nume   Oraşul medieval de la Câmpulung - Mânăstirea Negru Vodă
Județ   Argeş
Unitate administrativă   Municipiul Câmpulung
Localitate   Câmpulung
Adresa   str. Negru Vodă, nr. 64
Punct   Mânăstirea Negru Vodă
Reper   Situl arheologic se află pe terasa înaltă de pe malul drept al pârâului Târgului, în zona Bisericii Mânăstirii "Negru Vodă".
Forma de relief   terasă
   
|<<
<
26 / 35
>
>>|
Imagine preluată din Cronica Cercetărilor Arheologice din România, Campania 2001. Raportul nr. 60
Scroll