Informaţii despre imagine
Datare   2002
Publicată în   Cronica Cercetarilor Arheologice din România, Campania 2002 - Raportul nr. 169
Referință internet  
 
Situri asociate imaginii
Informaţii despre sit   Localizează pe harta României*
Cod RAN   91063.02
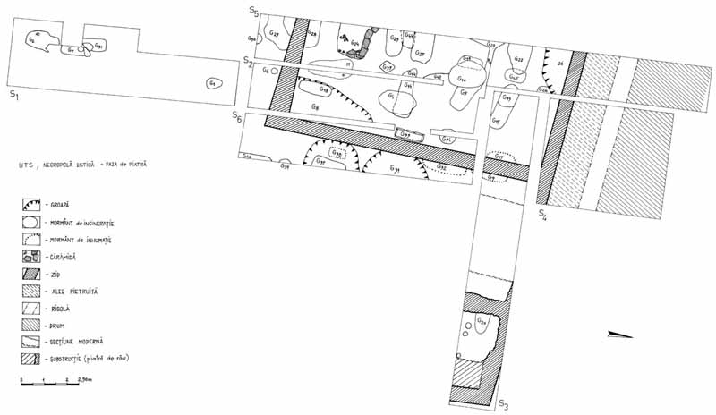
Nume   Situl arheologic roman de la Sarmizegetusa - La Cireş
Județ   Hunedoara
Unitate administrativă   Sarmizegetusa
Localitate   Sarmizegetusa
Punct   La Cireş
Reper   Necropola se află la est de zidul de incintă al oraşului roman, la aprox. 400 m E de colţul nord-estic al incintei acestuia, în imediata vecinătate a drumului comunal Sarmizegetusa-Ostrov.
   
|<<
<
45 / 46
>>|
Imagine preluată din Cronica Cercetărilor Arheologice din România, Campania 2002. Raportul nr. 169
Scroll