Informaţii despre imagine
Datare   2004
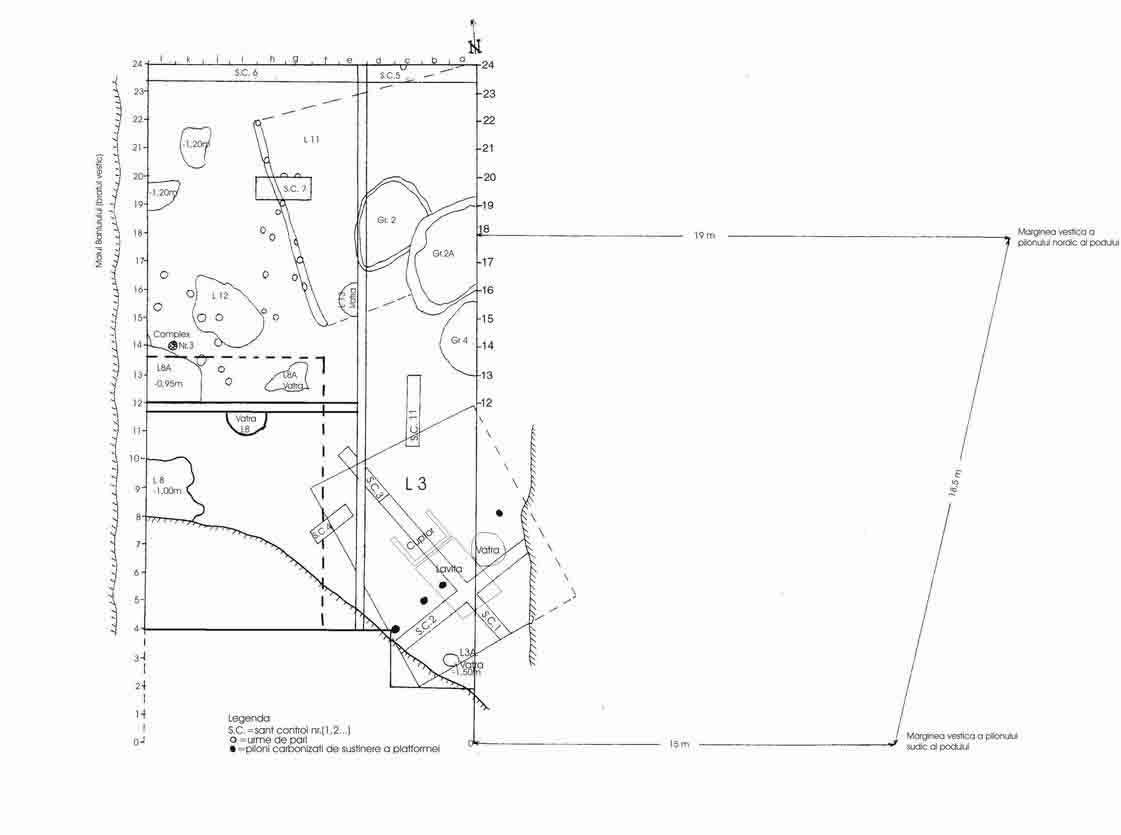
Publicată în   Cronica Cercetarilor Arheologice din România, Campania 2004 - Raportul nr. 116
 
Situri asociate imaginii
Informaţii despre sit   Localizează pe harta României*
Cod RAN   96986.01
Nume   Aşezarea Cucuteni de la Hoiseşti -La Pod
Județ   Iaşi
Unitate administrativă   Dumeşti
Localitate   Hoiseşti
Punct   La Pod
Reper   în dreptul podului de beton, pe drumul comunal D.C. 36 A, la intrarea dinspre nord a satului Hoiseşti, în stânga Bahluiului, aproape de confluenţa cu Sărătura
Forma de relief   luncă
   
1 / 34
>
>>|
Imagine preluată din Cronica Cercetărilor Arheologice din România, Campania 2004. Raportul nr. 116
Scroll