Informaţii despre imagine
|
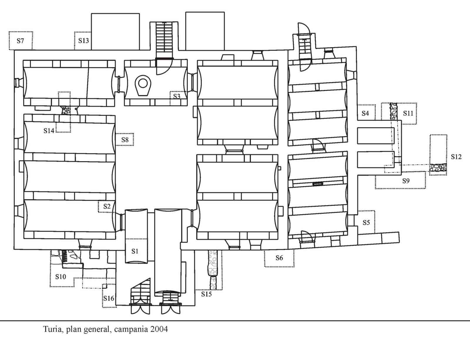
Datare
|
|
2004 |
|
Publicată în
|
|
Cronica Cercetarilor Arheologice din România, Campania 2004 - Raportul nr. 230
|
|
Referință internet
|
|
|
|
| |
Situri asociate imaginii
|
|
Informaţii despre sit
|
|
Localizează pe harta României*
|
|
Cod RAN
|
|
64880.05 |
Cod LMI (Lista Monumentelor Istorice)
|
|
CV-II-a-A-13299 |
|
Nume
|
|
Castelul Apor si situl arheologic din Turia |
|
Județ
|
|
Covasna |
|
Unitate administrativă
|
|
Turia |
|
Localitate
|
|
Turia |
|
Adresa
|
|
Castel Apor, nr. 244 |
|
Punct
|
|
"Grădina conacului Apor" |
|
Reper
|
|
în grădina castelului |
|
Utilizare teren
|
|
locuire |
|
|
|
|
Imagine preluată din Cronica Cercetărilor Arheologice din România, Campania 2004. Raportul nr. 230
|