Informaţii despre imagine
|
Datare
|
|
2005 |
|
Publicată în
|
|
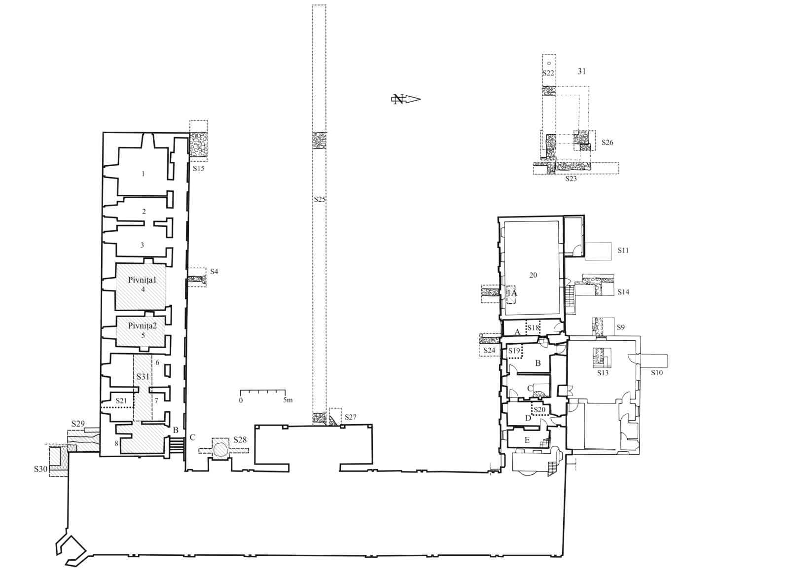
Cronica Cercetarilor Arheologice din România, Campania 2005 - Raportul nr. 209
|
|
Referință internet
|
|
|
|
| |
Situri asociate imaginii
|
|
Informaţii despre sit
|
|
Localizează pe harta României*
|
|
Cod RAN
|
|
64915.02 |
Cod LMI (Lista Monumentelor Istorice)
|
|
CV-II-m-A-13305 |
|
Nume
|
|
Castelul Kálnoki de la Valea Crişului |
|
Județ
|
|
Covasna |
|
Unitate administrativă
|
|
Valea Crişului |
|
Localitate
|
|
Valea Crişului |
|
Adresa
|
|
Str. Orbán Balázs, nr. 6 |
|
Reper
|
|
Castelul se află în centrul satului. |
|
Utilizare teren
|
|
locuire |
|
|
|
|
Imagine preluată din Cronica Cercetărilor Arheologice din România, Campania 2005. Raportul nr. 209
|