Informaţii despre imagine
Datare   2011
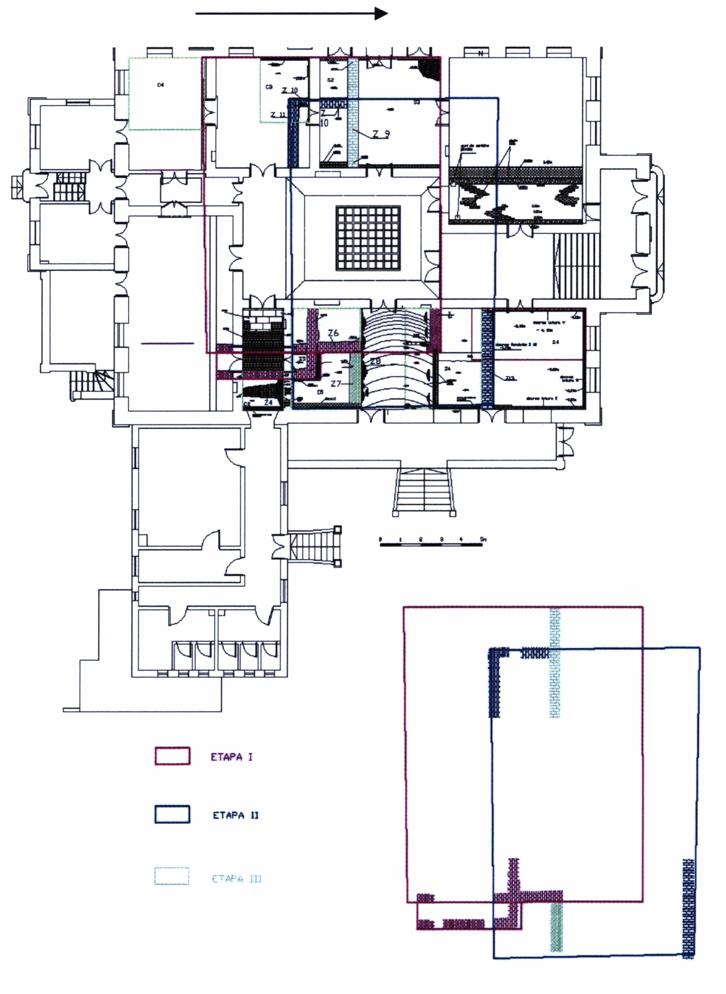
Publicată în   Cronica Cercetarilor Arheologice din România, Campania 2011 - Raportul nr. 98
Referință internet  
 
Situri asociate imaginii
Informaţii despre sit   Localizează pe harta României*
Cod RAN   179132.89
Cod LMI (Lista Monumentelor Istorice) Lista Monumentelor Istorice din 2010   B-II-m-A-19217
Nume   Situl arheologic de la Bucureşti - Casa Eliad
Județ   Bucureşti
Unitate administrativă   Municipiul Bucureşti
Localitate   Bucureşti
Adresa   Str. Mircea Vodă 5, sector 3
Reper   Casa Eliad este poziţionată în apropierea intersecţiei dintre bulevardul Mircea Vodă şi strada Matei Basarab. În Casa Eliad funcţionează azi Serviciul de Stare Civilă al Sectorului 3.
   
|<<
<
8 / 9
>>|
Imagine preluată din Cronica Cercetărilor Arheologice din România, Campania 2011. Raportul nr. 98
Scroll