Information about the picture
Date   2011
Published source   Chronicle of the Archaeological Excavations in Romania, 2011 Campaign - Report no. 101
Internet reference  
 
Sites linked to the picture
Site Information   Display on the map of Romania*
RAN Code   179132.126
LMI Code (List of Historic Monuments) History Monuments List of 2010   B-II-s-A-17909
Name   Situl arheologic Centrul Istoric Bucureşti
County   Bucureşti
Commune   Municipiul Bucureşti
City/Town/Village   Bucureşti
Landmark   Centrul istoric este delimitat la Nord de Bd. Elisabeta (de la intersecţia cu Calea Victoriei), Bd. Carol (până la intersecţia cu str. Hristo Botev); la Est - de str. Hristo Botev (de la intersecţia cu Bd. Carol până la intersecţia cu Bd. Corneliu Coposu); la Sud - de Bd. Corneliu Coposu (de la intersecţia cu str. Hristo Botev), Splaiul Independenţei (până la intersecţia cu Calea Victoriei); la Vest: de Calea Victoriei (de la intersecţia cu Splaiul Independenţei până la intersecţia cu Bd. Elisabeta).
Geomorphology   câmpie, terasă
Land utility   locuire, altele
   
1 / 3
>
>>|
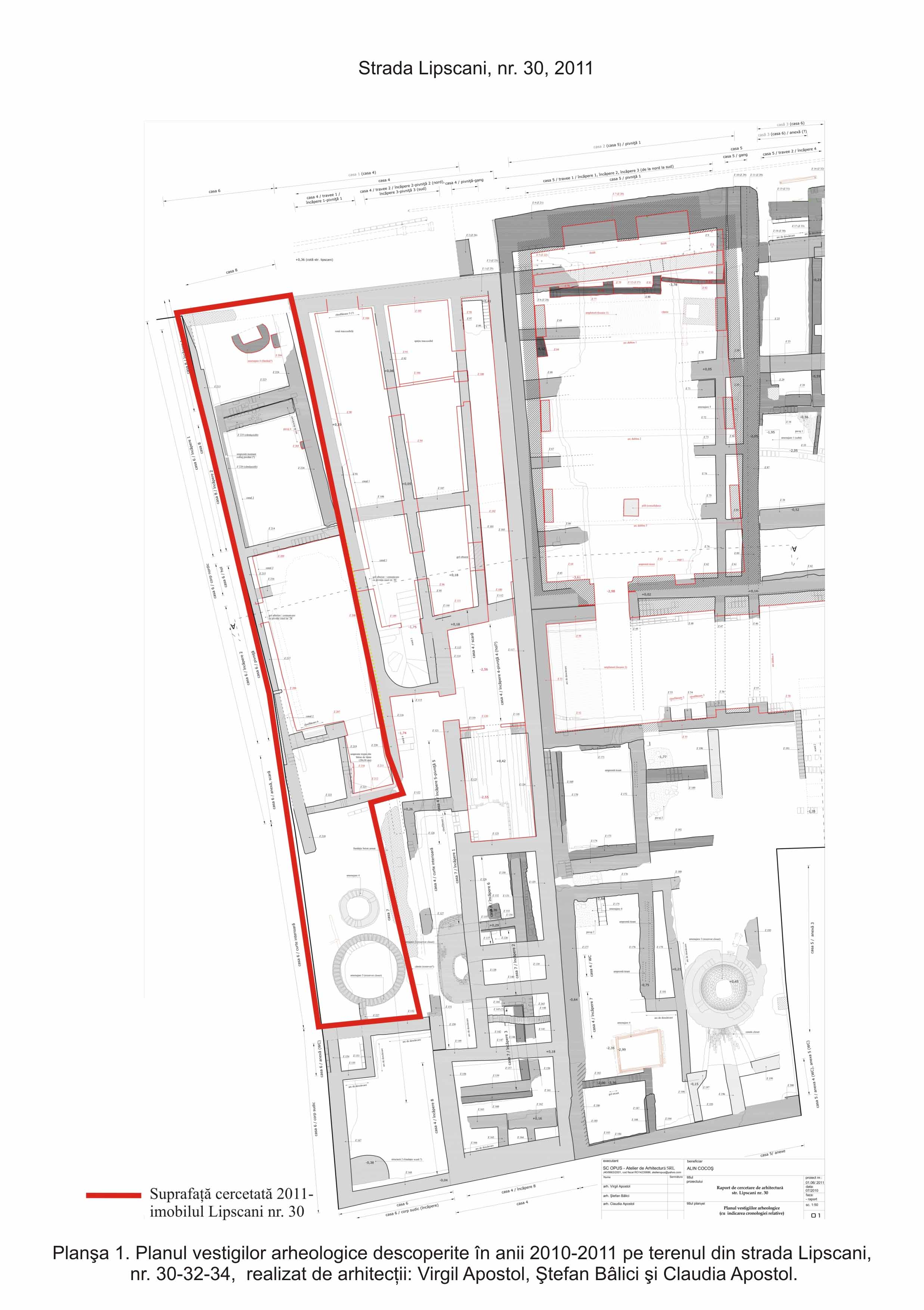
Image taken from the Chronicle of the Archaeological Excavations in Romania, 2011 Campaign. Report no. 101
Scroll