Information about the picture
Date   2011
Published source   Chronicle of the Archaeological Excavations in Romania, 2011 Campaign - Report no. 115
 
Sites linked to the picture
Site Information   Display on the map of Romania*
RAN Code   40287.04
LMI Code (List of Historic Monuments) History Monuments List of 2010   BV-II-a-A-11687
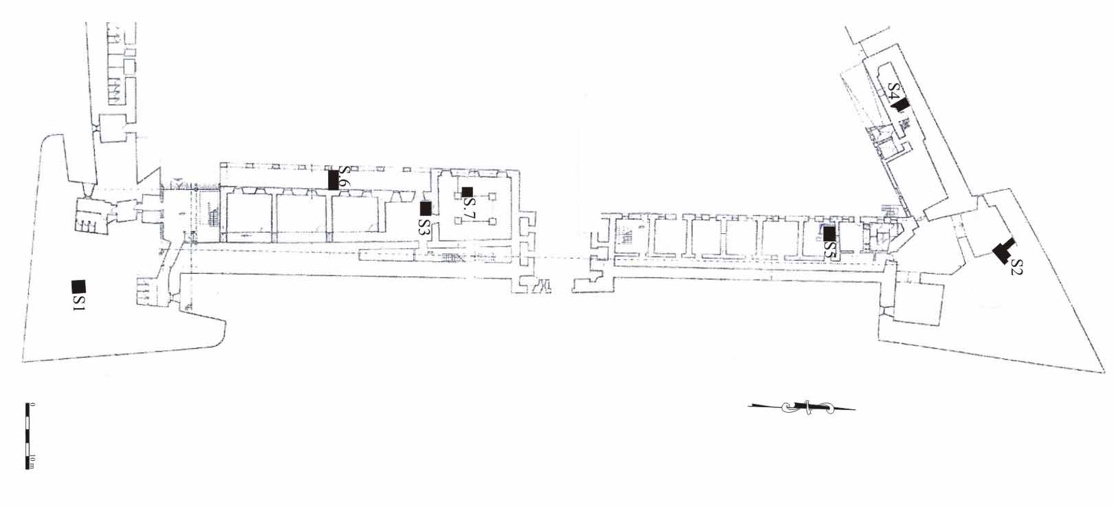
Name   Cetatea fortificată de la Făgaraş
County   Braşov
Commune   Municipiul Făgăraş
City/Town/Village   Făgăraş
Address   Piaţa Mihai Viteazul, nr. 1
Landmark   Cetatea se află în sudul Transilvaniei, în centrul municipiului Făgăraş (jud. Braşov), pe traseul şoselei DN1, la 66 km de oraşul Braşov şi 76 km de oraşul Sibiu, pe malul râului Olt, la poalele Munţilor Făgăraş, în zona numită Ţara Făgăraşului. Cetatea se află de asemenea la 500 m S de râul Olt şi la 100 m N de drumul naţional DN 1 (E 68), care face legătura între Sibiu şi Braşov. În vechime şanţul de apărare era alimentat cu apă de râul Făgărăşel, un afluent al Oltului.
   
1 / 3
>
>>|
Image taken from the Chronicle of the Archaeological Excavations in Romania, 2011 Campaign. Report no. 115
Scroll