Informaţii despre imagine
|
Datare
|
|
2011 |
|
Publicată în
|
|
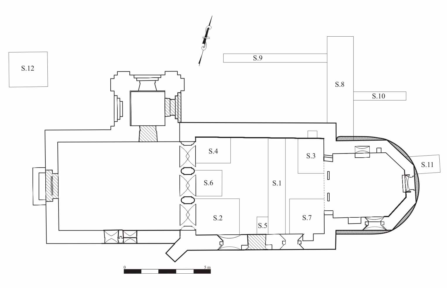
Cronica Cercetarilor Arheologice din România, Campania 2011 - Raportul nr. 116
|
|
Referință internet
|
|
|
|
| |
Situri asociate imaginii
|
|
Informaţii despre sit
|
|
Localizează pe harta României
|
|
Cod RAN
|
|
57591.02 |
Cod LMI (Lista Monumentelor Istorice)
|
|
CJ-II-m-A-07613 |
|
Nume
|
|
Biserica Cuvioasa Paraschiva a Episcopiei Feleacului şi Vadului de la Feleacu |
|
Județ
|
|
Cluj |
|
Unitate administrativă
|
|
Feleacu |
|
Localitate
|
|
Feleacu |
|
Adresa
|
|
475 |
|
Reper
|
|
Biserica se află în localitatea Feleacu. Localitatea se află aşezată pe masivul Feleacului, situat la întâlnirea Podişului Someşan şi Câmpia Transilvaniei. Masivul este orientat pe direcţia est-vest, pe o lungime de 20 km, de-a lungul căreia se află mai multe înălţimi: Vârful Peana (832 m), Dealul Feleac (744 m), Măgura Sălicii (824 m). |
|
|
|
|
Imagine preluată din Cronica Cercetărilor Arheologice din România, Campania 2011. Raportul nr. 116
|