Informaţii despre imagine
Datare   2018
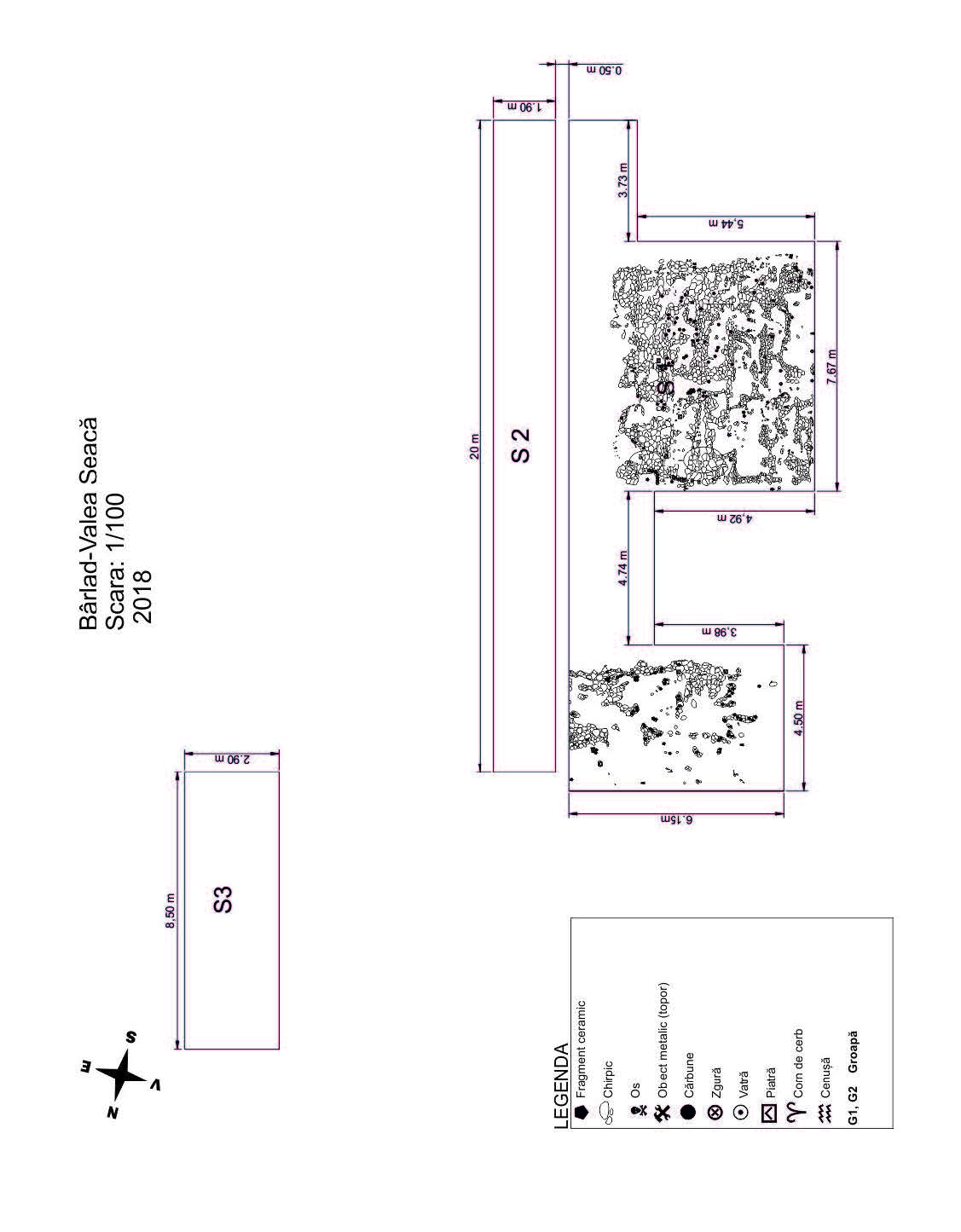
Publicată în   Cronica Cercetarilor Arheologice din România, Campania 2018 - Raportul nr. 7
Referință internet  
 
Situri asociate imaginii
Informaţii despre sit   Localizează pe harta României*
Cod RAN   161801.02
Cod LMI (Lista Monumentelor Istorice) Lista Monumentelor Istorice din 2010   VS-I-s-A-06689
Nume   Aşezarea pluristratificată de la Bârlad - Valea Seacă (La Baraj; Baraj Cotu Negru)
Județ   Vaslui
Unitate administrativă   Municipiul Bârlad
Localitate   Bârlad
Punct   Valea Seacă
Reper   Aşezarea se află la cca. 3 km SV de sat, pe, Valea Seacă, pe ambele maluri, la 1,5 km NNV de oraş.
Forma de relief   podiş
Utilizare teren   păşune
   
|<<
<
7 / 7
Imagine preluată din Cronica Cercetărilor Arheologice din România, Campania 2018. Raportul nr. 7
Scroll