Informaţii despre imagine
Datare   2020
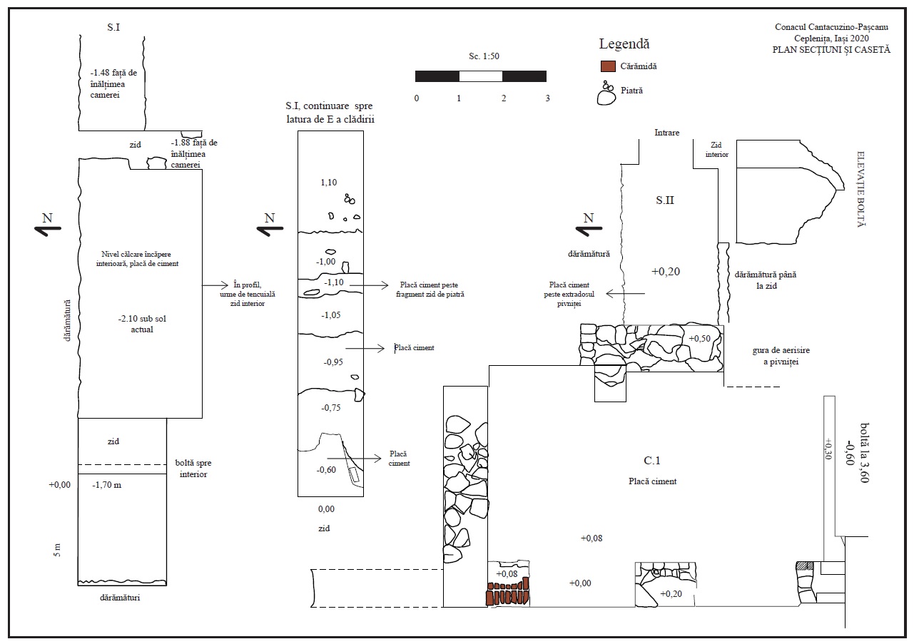
Publicată în   Cronica Cercetarilor Arheologice din România, Campania 2020 - Raportul nr. 69
Referință internet  
 
Situri asociate imaginii
Informaţii despre sit   Localizează pe harta României*
Cod RAN   96156.03
Cod LMI (Lista Monumentelor Istorice) Lista Monumentelor Istorice din 2010   IS-II-a-B-04119
Nume   Ansamblul conacului Cantacuzino-Paşcanu de la Cepleniţa
Județ   Iaşi
Unitate administrativă   Cepleniţa
Localitate   Cepleniţa
Reper   Ansamblul se află în partea de sud-vest a localităţii.
Forma de relief   deal
   
|<<
<
21 / 22
>>|
Imagine preluată din Cronica Cercetărilor Arheologice din România, Campania 2020. Raportul nr. 69
Scroll