Informaţii despre imagine
|
Autor
|
|
Aparaschivei, D. |
|
Titlu
|
|
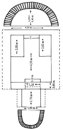
Planul cavoului Tudorka |
|
Tip
|
|
plan |
|
Descriere
|
|
Această imagine reprezintă planul cavoului Tudorka |
|
Data imaginii
|
|
2012 |
|
Sursa
|
|
D. Aparaschivei, M. Iacob, A. D. Soficaru, D. Paraschiv, Homines, Funera, Astra Proceedings of the International Symposium on Funerary Anthropology, p. 170, fig. 2. |
|
Referință internet
|
|
|
|
| |
Situri asociate imaginii
|
|
Informaţii despre sit
|
|
Localizează pe harta României*
|
|
Cod RAN
|
|
161277.01 |
Cod LMI (Lista Monumentelor Istorice)
|
|
TL-I-s-A-05926 |
|
Nume
|
|
Cetatea Ibida de la Slava Rusă - Cetatea Fetei |
|
Județ
|
|
Tulcea |
|
Unitate administrativă
|
|
Slava Cercheză |
|
Localitate
|
|
Slava Rusă |
|
Punct
|
|
Cetatea Fetei |
|
Punct alte denumiri
|
|
Ibida |
|
Punct alte denumiri, alte limbi
|
|
Kizil Hisar |
|
Reper
|
|
Cetatea este suprapusă parţial de satul actual în sectoarele: central-nordic, vestic, sud-vestic, iar o partea a rămas în extravilan, respectiv, în partea de vest a satului Slava Rusă. |
|
Forma de relief
|
|
deal |
|
Utilizare teren
|
|
locuire; agricultură |
|
|