Informaţii despre imagine
|
Autor
|
|
Răileanu, Paulică; Rotaru, Ancuța |
|
Titlu
|
|
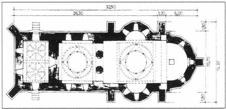
Planul Bisericii Trei Ierarhi |
|
Tip
|
|
plan |
|
Sursa
|
|
Răileanu, Paulică; Rotaru, Ancuța, Studii privind caracteristicile terenului de fundare pentru amplasamentul bisericii Trei Ierarhi din Iasi, în Monumentul, 2004, Lucrările simpozionului național MONUMENTUL - Tradiție și Viitor - Ediția a V-a, Iași, 2004. |
|
| |
Situri asociate imaginii
|
|
Informaţii despre sit
|
|
Localizează pe harta României*
|
|
Cod RAN
|
|
95079.64 |
Cod LMI (Lista Monumentelor Istorice)
|
|
IS-II-a-A-04076 |
|
Nume
|
|
Ansamblul Mănăstirii Trei Ierarhi de la Iaşi |
|
Județ
|
|
Iaşi |
|
Unitate administrativă
|
|
Municipiul Iaşi |
|
Localitate
|
|
Iaşi |
|
Adresa
|
|
Şos. Ştefan cel Mare şi Sfânt nr. 28 |
|
Punct alte denumiri
|
|
Trisfetitele |
|
Reper
|
|
Biserica se află în vechiul centru al oraşului Iaşi, pe strada Ştefan cel Mare şi Sfânt. |
|
|
|
|
|