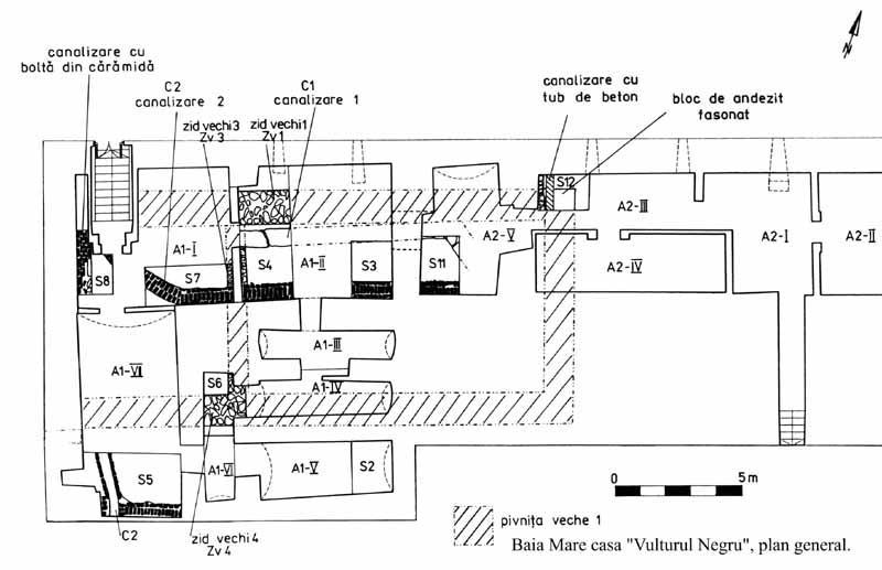
Informaţii despre imagine
|
Datare
|
|
2002 |
|
Publicată în
|
|
Cronica Cercetarilor Arheologice din România, Campania 2002 - Raportul nr. 20
|
|
| |
Situri asociate imaginii
|
|
Informaţii despre sit
|
|
Localizează pe harta României
|
|
Cod RAN
|
|
106327.02 |
|
Nume
|
|
Casa din Baia Mare - Casa Vulturul Negru (M1) |
|
Județ
|
|
Maramureş |
|
Unitate administrativă
|
|
Municipiul Baia Mare |
|
Localitate
|
|
Baia Mare |
|
Adresa
|
|
strada Piaţa Libertăţii, nr. 1 |
|
Punct
|
|
Casa Vulturul Negru (M1) |
|
Punct alte denumiri
|
|
M1 |
|
Reper
|
|
În centrul istoric |
|
|
Informaţii despre sit
|
|
Localizează pe harta României
|
|
Cod RAN
|
|
106327.03 |
|
Nume
|
|
Casa din Baia Mare - Str. Mihai Viteazul nr.17 (M2) |
|
Județ
|
|
Maramureş |
|
Unitate administrativă
|
|
Municipiul Baia Mare |
|
Localitate
|
|
Baia Mare |
|
Adresa
|
|
str. Mihai Viteazul nr.17 |
|
Punct
|
|
Str. Mihai Viteazul nr.17 (M2) |
|
Punct alte denumiri
|
|
M2 |
|
Reper
|
|
În centrul istoric |
|
|
Informaţii despre sit
|
|
Localizează pe harta României
|
|
Cod RAN
|
|
106327.04 |
|
Nume
|
|
Casa din Baia Mare - Casa Lendvay (M3) |
|
Județ
|
|
Maramureş |
|
Unitate administrativă
|
|
Municipiul Baia Mare |
|
Localitate
|
|
Baia Mare |
|
Adresa
|
|
Piaţa Libertăţii 15 |
|
Punct
|
|
Casa Lendvay |
|
Punct alte denumiri
|
|
M3 |
|
Reper
|
|
În centrul istoric |
|
|
|
|
Imagine preluată din Cronica Cercetărilor Arheologice din România, Campania 2002. Raportul nr. 20
|