Informaţii despre imagine
|
Datare
|
|
2008 |
|
Publicată în
|
|
Cronica Cercetarilor Arheologice din România, Campania 2008 - Raportul nr. 173
|
|
| |
Situri asociate imaginii
|
|
Informaţii despre sit
|
|
Localizează pe harta României
|
|
Cod RAN
|
|
130696.01 |
|
Nume
|
|
Aşezare din epoca migraţiilor de la Ploieştiori - Mall Ploieşti |
|
Județ
|
|
Prahova |
|
Unitate administrativă
|
|
Blejoi |
|
Localitate
|
|
Ploieştiori |
|
Punct
|
|
Mall Ploieşti |
|
Reper
|
|
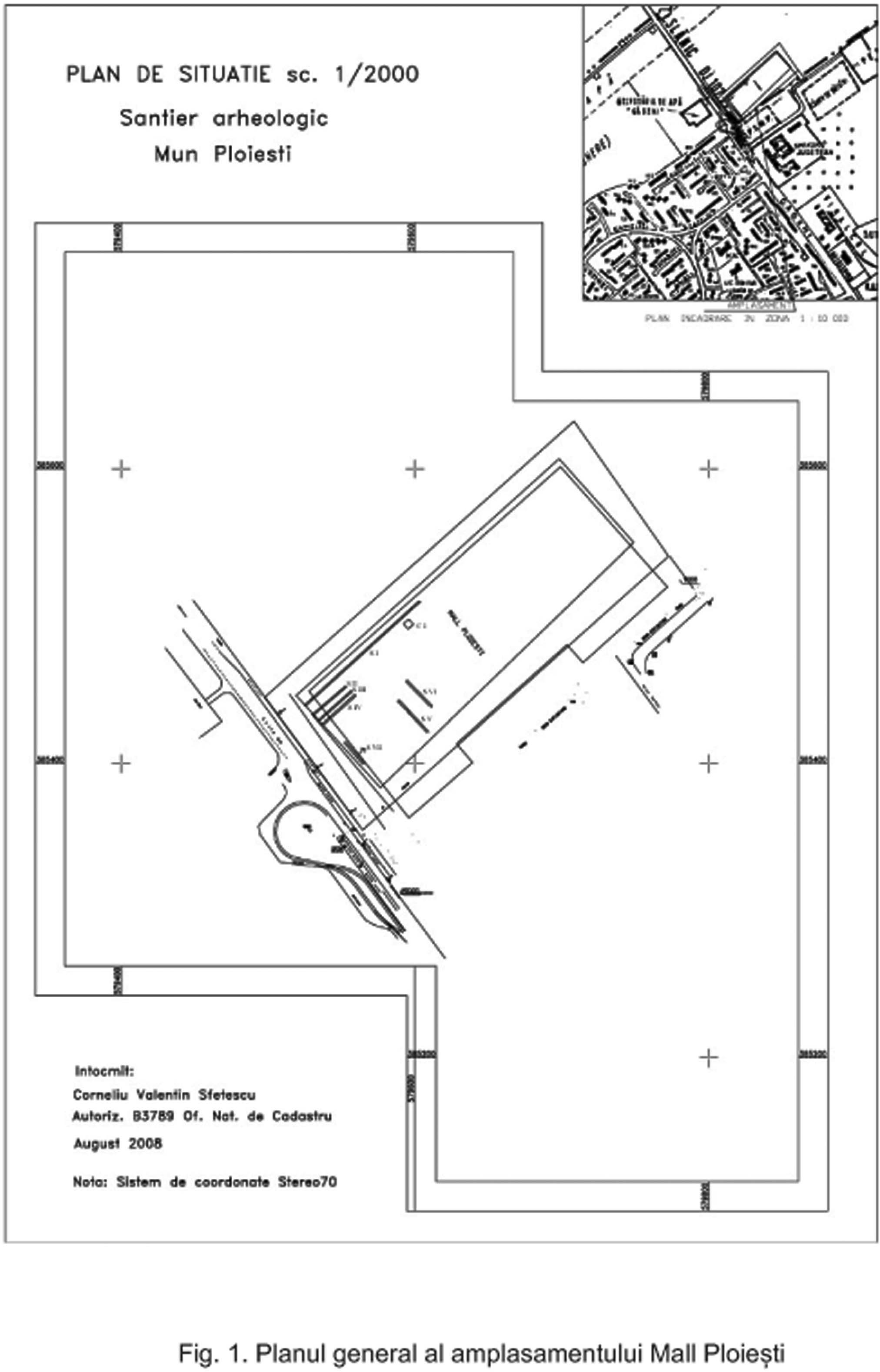
Aşezarea se află lângă municipiului Ploieşti, în apropierea Spitalului Judeţean, pe partea dreaptă a DJ 102. |
|
|
|
|
Imagine preluată din Cronica Cercetărilor Arheologice din România, Campania 2008. Raportul nr. 173
|