Informaţii despre imagine
Datare   2008
Publicată în   Cronica Cercetarilor Arheologice din România, Campania 2008 - Raportul nr. 173
Referință internet  
 
Situri asociate imaginii
Informaţii despre sit   Localizează pe harta României
Cod RAN   130696.01
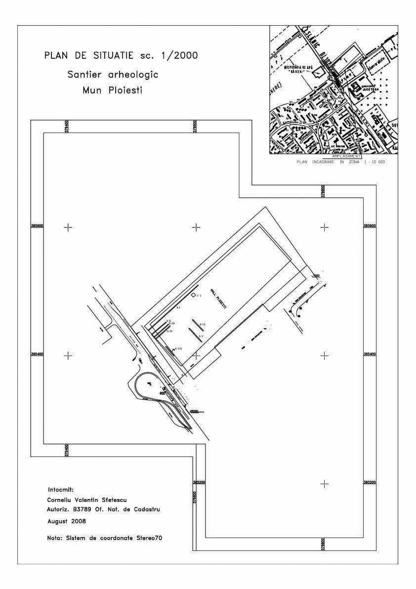
Nume   Aşezare din epoca migraţiilor de la Ploieştiori - Mall Ploieşti
Județ   Prahova
Unitate administrativă   Blejoi
Localitate   Ploieştiori
Punct   Mall Ploieşti
Reper   Aşezarea se află lângă municipiului Ploieşti, în apropierea Spitalului Judeţean, pe partea dreaptă a DJ 102.
   
|<<
<
5 / 5
Imagine preluată din Cronica Cercetărilor Arheologice din România, Campania 2008. Raportul nr. 173
Scroll